Dự án nhà phố 2 tầng này theo phong cách hiện đại, tập trung vào ba mục tiêu chính: không gian sáng thoáng, công năng sử dụng thực tế và khả năng thi công tối ưu ngân sách.

Định hướng thiết kế
Tổng thể công trình sử dụng hình khối vuông vức, đường nét gọn và hạn chế chi tiết trang trí dư thừa. Mặt đứng ưu tiên mảng trắng lớn kết hợp khung cửa tối màu để tạo tương phản hiện đại, sạch và bền thẩm mỹ theo thời gian.
Các khoảng ban công kính được bố trí liên tục theo hai mặt tiền, vừa tăng tầm nhìn, vừa hỗ trợ lấy sáng và đón gió cho không gian bên trong.
Giải pháp công năng đề xuất
- Tầng trệt ưu tiên khu sinh hoạt chung: phòng khách, bếp - ăn và khu phụ trợ.
- Tầng lầu bố trí không gian nghỉ ngơi riêng tư, tách khỏi giao thông chính.
- Mảng cửa kính lớn giúp giảm phụ thuộc chiếu sáng nhân tạo ban ngày.
- Luồng di chuyển trong nhà ngắn và rõ, thuận tiện cho gia đình có trẻ nhỏ.
Vật liệu và chi phí thi công
Để cân bằng giữa thẩm mỹ và độ bền vận hành, phương án phù hợp với nhóm vật liệu phổ biến, dễ bảo trì:
- Sơn ngoại thất tông sáng, chống bám bẩn và chịu thời tiết tốt.
- Cửa nhôm kính khung tối màu, đồng bộ ngôn ngữ kiến trúc hiện đại.
- Lan can kính cường lực để giữ độ thoáng cho mặt tiền.
- Hoàn thiện theo từng giai đoạn để kiểm soát dòng tiền khi thi công.
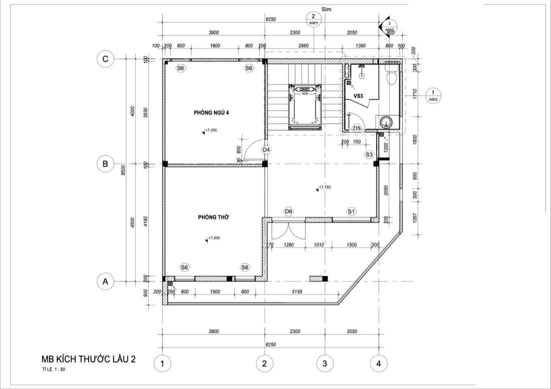
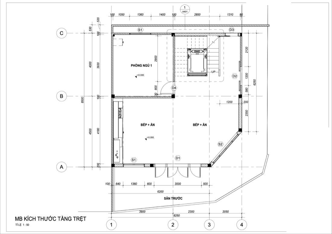
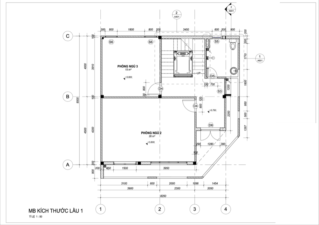
Hình ảnh từ hồ sơ PDF
Các hình dưới đây được trích từ hồ sơ thiết kế để tham khảo thêm bố cục và phương án triển khai:

Kinh nghiệm khi triển khai thực tế
- Chốt công năng trước khi chốt vật liệu để tránh phát sinh sửa đổi.
- Kiểm tra kỹ giải pháp thoát nước ban công và mái trước khi hoàn thiện.
- Thống nhất hồ sơ kỹ thuật giữa thiết kế và thi công để giảm sai số tại hiện trường.
- Dự phòng ngân sách 5-10% cho các hạng mục phát sinh hợp lý.
Kết luận
Mẫu nhà phố 2 tầng này phù hợp với nhu cầu ở thực của gia đình trẻ: hình thức hiện đại, mặt tiền sáng, công năng mạch lạc và có thể triển khai thi công theo lộ trình ngân sách. Đây là hướng tiếp cận an toàn cho các dự án nhà ở cần cân bằng giữa đẹp, bền và hiệu quả đầu tư.
